Carrières Contact
Retour
  1. Accueil
  2. >
  3. Louer
  4. >
  5. Location Commerce Veigy-Foncenex 1 pièce 9.8 m²

Location Commerce Veigy-Foncenex 1 pièce 9.8 m²

Exclusivité
commerce 1 pièce en location sur Veigy-Foncenex (74140)
commerce 1 pièce en location sur Veigy-Foncenex (74140)
commerce 1 pièce en location sur Veigy-Foncenex (74140)
Amandine FOUCHE RSAC 841 977 127 / Annecy

commerce Veigy-Foncenex

9.8 m² 1 pièce 408 € /mois HC HT*

Location cabinet de consultation meublé dans Maison de Santé neuve à VEIGY-FONCENEX

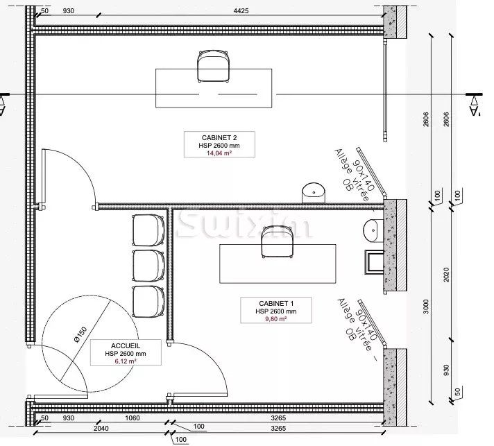
Réf : 2378aAF : Sur la commune de VEIGY-FONCENEX, beau et lumineux cabinet de consultation meublé, de 9.80m² (cabinet 1 sur le plan), situé au rez-de-chaussée, avec ascenseur et aux normes PMR, dans une Maison de Santé en cours de construction, avec goût et modernité.

Ce bien est destiné aux professions médicales, paramédicales et bien-être.

Ce cabinet, avec son point d'eau, se situe dans un espace comprenant un autre cabinet, une salle d'attente commune et un espace commun à tous les praticiens de la Maison de Santé, comprenant une cuisine et une belle terrasse.

De nombreuses places de stationnement gratuites sont disponibles pour la clientèle.
Possibilité de louer une place de stationnement privative pour 30€ TTC/mois.

Ce bien est disponible dès à présent.

Loyer : 490€ TTC hors charges + 30€ TTC de provision sur charges comprenant l'électricité, l'eau, l'entretien des communs et 1/2 de la taxe foncière.

Très belle visibilité et accessibilité pour la clientèle.

Proche de la frontière Suisse.

A découvrir sans plus attendre!

Location Commerce Veigy-Foncenex 1 pièce 9.8 m² Galerie photos
    Prix
  • Loyer : 408 € /mois HC HT*
  • *Loyer mensuel HC HT
  • Honoraires : 744,30 € TTC
  • Dépôt de garantie : 980 €
Diagnostics énergétiques

Afficher les bilans énergétiques

Demande de renseignements

Les informations recueillies sur ce formulaire sont enregistrées dans un fichier informatisé par la société Swixim international pour la gestion et le suivi de votre demande.

Conformément à la loi "Informatique et liberté", vous pouvez exercer votre droit d'accès aux données vous concernant et les faire rectifier en contactant : Swixim international, correspondant : "Informatique et libertés" Rue du Mont Blanc, 5 1201 Genève, Suisse ou à contact@swixim.ch, en précisant dans l'objet du courrier "Droit des personnes" et en joignant la copie de votre justificatif d'identité.

Ce site est protégé par reCAPTCHA, les règles de Confidentialité et les Conditions d'Utilisation de Google s'appliquent.

Amandine FOUCHE RSAC 841 977 127 / Annecy

Performance énergétique et climatique

<b>Diagnostics</b> énergétiques

Diagnostic réalisé avant le 1er juillet 2021

commerce 1 pièce en location sur Veigy-Foncenex (74140)
commerce 1 pièce en location sur Veigy-Foncenex (74140)
commerce 1 pièce en location sur Veigy-Foncenex (74140)